welcome
to Aarvi 2 Infraspace
Latest from Services
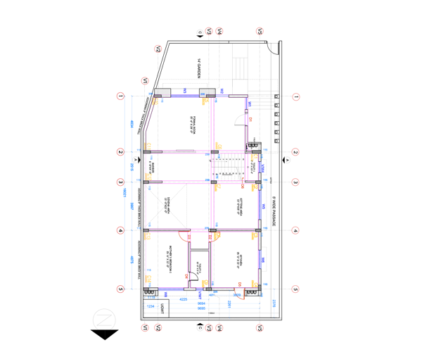
Building and space planning
It is a key tool to initiate the work in a channelized manner. There are Architects who predominantly work for it describes the best way to start the construction work in an efficient way with proper scaling, dimensioning and budgeting as a team work. I enjoy every step of the scheduling and blueprint process, from discussion and collaboration to concept and implementation, but I find the most satisfaction in seeing the finished product do everything for you that it was created to do. Take a look at my work and if you'd like to discuss your project, I would like to talk and help you to build it.
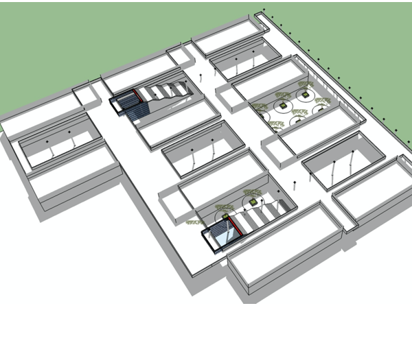
Project Management Consultancy (PMC)
It consists of quality time and involves understanding how to supervise any project from setting up, designing to completing. It is basically the major and very important link between drawings in cad to the final built up project as designed by an Architect and Structural designer. It reviews the drawings and supervises all the stages of the job from foundation to finishing and, ultimately it suggests the issues involved in construction to mitigate the challenges from geo-technical investigation to the final end product including interior designing, ventilation, lighting, plumbing and energy saving parameters of the structure. It also resolves and reduces construction time, by adopting proper methods and techniques to cop up the client satisfaction without affecting target budget and time limit.
Structure designing
It is a foundation of a building from core strength to the aesthetic feature of the structures. It consists of reinforced concrete design to up to steel designs for industrial purposes. It serves the capabilities and does analysis to withstand the structure against unforeseen environmental challenges and impacts. It is like the bones of the building. Without bones, the body does not survive.
Quality Management
It is having a foremost role in the construction industry nowadays. Most of the clients are confused in between adopting two options i.e. fast production or quality development. Sometimes the quality aspect is neglected due to the demand of rapid creation. But if the quality is suffered then ultimately it affects the whole project adversely and when it comes to functioning in a defect liability period of stipulated life span of the structure as well.
Construction
The definition of building is changing with time. Lots of innovations, technological developments were introduced in the past one decade, e.g. years before there were no idea of cavity walls in construction but now it is in demand for current green buildings which does not allow heat to enter even through walls in hot Indian weather. We have expertise in making load bearing structures along with confined masonry up to G+3 buildings. We also make RCC frame structures as per client’s requirement and demands.
Tendering
It is the process of making an approved draft which converts the whole project on paper before starting the construction work. There are basically two bids. One is price bid and the other is techno-commercial bid. It gives you a proper channel for planning, budget, time limit and finance related matters. If project is on very big scale this procedure of execution is very much helpful.

